








Apartament 2 camere, spatios 51 mp Berceni - Gradistea
Bucuresti, Berceni
86.500€
Camere
2
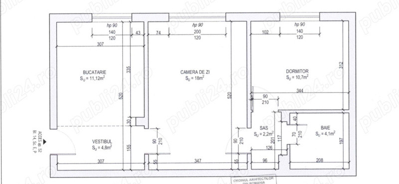
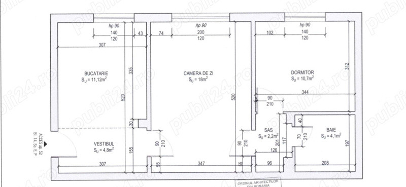
Suprafata utila
51 mp
Suprafata construita
55 mp
Etaj
Parter
Bai
1
An constructie
1979
- ID:P1823
- Nr. camere:2
- Nr. dormitoare:1
- S. utila:51.00 mp
- S. construita:55.00 mp
- Comp.:Semidecomandat
- Confort:1
- Etaj:Parter
- Nr. bucatarii:1
- Nr. bai:1
- An constructie:1979
- Structura:Beton
- Tip imobil:Bloc
- Regim inaltime:P+4
Descriere
COD PROPRIETATE: P1823
Agentia imobiliara ERezidential va ofera de vanzare, o proprietate tip apartament, cu 2 camere, semidecomandat, situata in Bucuresti, zona Berceni, intr-un imobil tip bloc, construit in anul 1979, la etajul P/ 4. Dispune de o suprafata totala de 55 mp.
Alcatuit din: camere -2, bucatarie- 1, bai- 1, balcon-
Caracteristici:
-Pereti: vopsea lavabila
-Podele:
-Ferestre: termopan
-Contorizare: apometre, contor curent electric
-Imobil: interfon
-Utilitati generale: curent electric, apa, canalizare, gaz
-Sistem incalzire: termoficare
Vecinatati (puncte de reper): Scoala 119; Gradinita Insirite Margarite; Lidl
In imediata apropiere intalnim: spatii comerciale, financiare, educationale, medicale, de relaxare etc.
Acces facil la mijloacele de transport in comun.
Se percepe comision standard!
Citeste mai mult
Agentia imobiliara ERezidential va ofera de vanzare, o proprietate tip apartament, cu 2 camere, semidecomandat, situata in Bucuresti, zona Berceni, intr-un imobil tip bloc, construit in anul 1979, la etajul P/ 4. Dispune de o suprafata totala de 55 mp.
Alcatuit din: camere -2, bucatarie- 1, bai- 1, balcon-
Caracteristici:
-Pereti: vopsea lavabila
-Podele:
-Ferestre: termopan
-Contorizare: apometre, contor curent electric
-Imobil: interfon
-Utilitati generale: curent electric, apa, canalizare, gaz
-Sistem incalzire: termoficare
Vecinatati (puncte de reper): Scoala 119; Gradinita Insirite Margarite; Lidl
In imediata apropiere intalnim: spatii comerciale, financiare, educationale, medicale, de relaxare etc.
Acces facil la mijloacele de transport in comun.
Se percepe comision standard!
Specificatii
Curent
Apa
Canalizare
Gaz
Termoficare
Vopsea lavabila
Ferestre Termopan
Usa intrare Metal
Bucatarie Mobilata
Apometre
Nemobilat
Interfon
Esti interesat de aceasta proprietate ?