














Apartament exclusivist 4 camere-decomadat-zona Primăverii
Bucuresti, Primaverii
800.000€
Camere
4
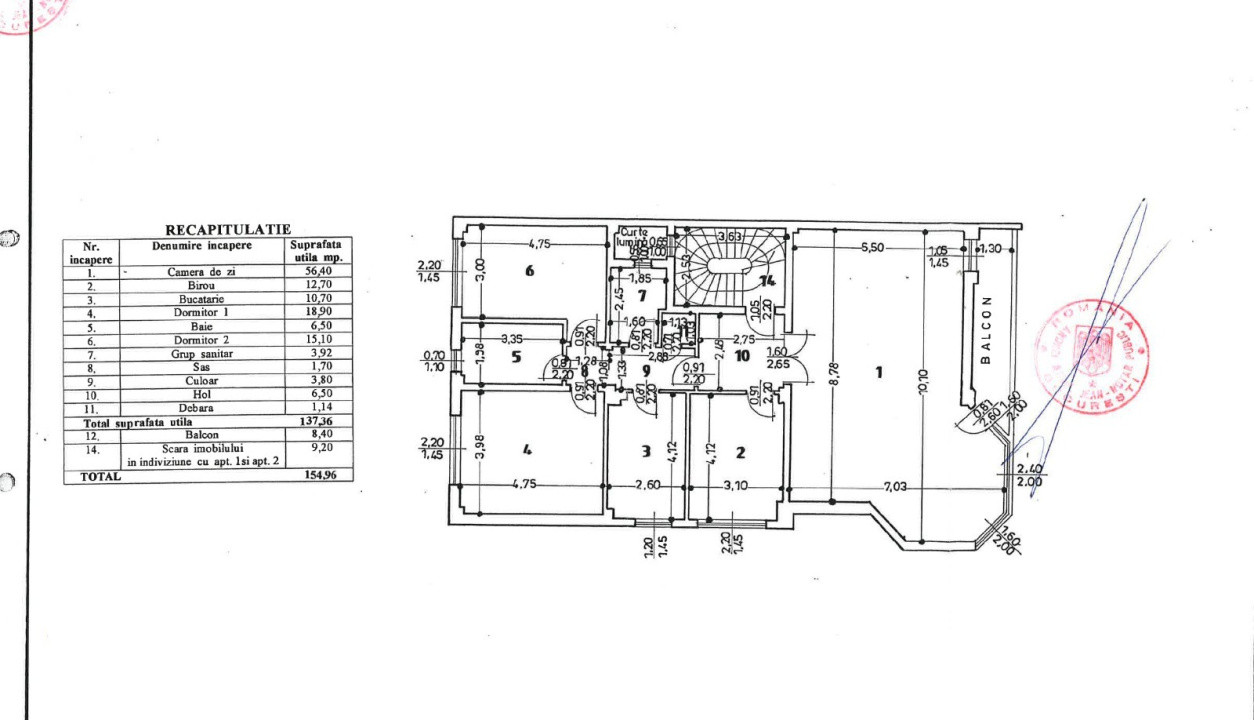
Suprafata utila
137.36 mp
Suprafata construita
145.76 mp
Etaj
Etaj 2
Bai
2
An constructie
1998
- ID:P1627
- Nr. camere:4
- Nr. dormitoare:3
- S. utila:137.36 mp
- S. balcoane:8.40 mp
- S. terase:0.00 mp
- S. construita:145.76 mp
- Comp.:Decomandat
- Confort:1
- Etaj:Etaj 2
- Nr. bucatarii:1
- Nr. bai:2
- Nr. balcoane:1
- An constructie:1998
- Structura:Beton
- Tip imobil:Bloc
- Regim inaltime:P+3
Descriere
Cod proprietate: P1627
Vă prezentăm un apartament spațios și luminos, situat într-un imobil boutique cu doar 3 apartamente cartierul Primăverii.
Proprietatea este amplasată la etajul 2 din 3 și oferă o suprafață utilă generoasă de 137 mp, la care se adaugă un balcon de 8 mp – spațiu ideal pentru relaxare.
Compartimentarea este eficientă și echilibrată:
Living amplu, perfect pentru zonă de relaxare și dining
3 dormitoare confortabile
2 băi
Bucătărie spațioasă
Balcon de 8 mp
Imobilul dispune de centrală termică proprie de bloc, asigurând un confort termic optim și costuri eficient gestionate. Faptul că în clădire există doar 3 apartamente oferă intimitate, liniște și un plus de exclusivitate.
Zona este una dintre cele mai căutate din București, apreciată pentru proximitatea față de parcuri, restaurante selecte, școli internaționale și centre de business.
Există posibilitatea achiziționării unui loc de parcare în subteran, contra cost.
O proprietate ideală pentru cei care își doresc spațiu generos, discreție și o adresă premium.
Citeste mai mult
Vă prezentăm un apartament spațios și luminos, situat într-un imobil boutique cu doar 3 apartamente cartierul Primăverii.
Proprietatea este amplasată la etajul 2 din 3 și oferă o suprafață utilă generoasă de 137 mp, la care se adaugă un balcon de 8 mp – spațiu ideal pentru relaxare.
Compartimentarea este eficientă și echilibrată:
Living amplu, perfect pentru zonă de relaxare și dining
3 dormitoare confortabile
2 băi
Bucătărie spațioasă
Balcon de 8 mp
Imobilul dispune de centrală termică proprie de bloc, asigurând un confort termic optim și costuri eficient gestionate. Faptul că în clădire există doar 3 apartamente oferă intimitate, liniște și un plus de exclusivitate.
Zona este una dintre cele mai căutate din București, apreciată pentru proximitatea față de parcuri, restaurante selecte, școli internaționale și centre de business.
Există posibilitatea achiziționării unui loc de parcare în subteran, contra cost.
O proprietate ideală pentru cei care își doresc spațiu generos, discreție și o adresă premium.
Specificatii
Curent
Apa
Canalizare
Gaz
Utilitati in zona
Centrala imobil
Calorifere
Aer conditionat
Bloc izolat termic
Vopsea lavabila
Faianta
Parchet
Gresie
Ferestre Termopan
Usa intrare Metal
Usa interior Lemn
Wc serviciu
Debara
Bucatarie Partial mobilata
Bucatarie Utilata
Apometre
Contor gaz
Partial mobilat
Interfon
Esti interesat de aceasta proprietate ?