
























Vilă spațioasă -7 camere-vedere panoramică-Azuga
Azuga, Satu Nou
335.000€
Camere
7
Suprafata utila
298 mp
Suprafata construita
388 mp
Bai
4
An constructie
2011
- ID:P1218
- Nr. camere:7
- Nr. dormitoare:6
- S. utila:298.00 mp
- S. terase:15.00 mp
- S. construita:388.00 mp
- S. teren:515.00 mp
- Nr. bucatarii:1
- Nr. bai:4
- Nr. parcari:2
- Nr. garaje:1
- Front stradal:18.00 m
- Nr. fronturi:1
- An constructie:2011
- Structura rezistenta:Caramida
- Regim inaltime:D+P+1
Descriere
Cod proprietate P1218
Agentia imobiliara ERezidential va ofera spre vanzare o vila situată într‑una dintre cele mai pitorești zone montane din România, vila este concepută pentru a oferi o experiență de locuire unde natura, confortul și spațiul interior se împletesc armonios. Cu 7 camere generoase, un sistem bine gândit de living şi relaxare, o terasă panoramică ce îţi permite să savurezi priveliştea munţilor încă de la răsărit, şi 4 băi moderne, proprietatea se adresează celor care caută o casă de vacanță, retragerea de weekend sau chiar o investiţie.
Amplasare & context :
Amplasată în zona de munte din Azuga, cu acces facil către pârtiile de schi, trasee de drumeție şi natură – ideal atât pentru iarnă, cât şi pentru sezonul cald.
Terasa şi ferestrele mari sunt orientate astfel încât să profite de expunerea către munte, oferind vedere panoramică asupra crestelor, pădurilor şi văii.
Priveliștea montană adaugă un plus de valoare şi armonie: aer curat de munte, linişte, contact direct cu natură.
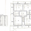
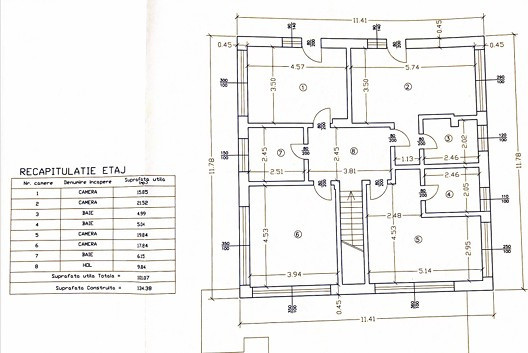
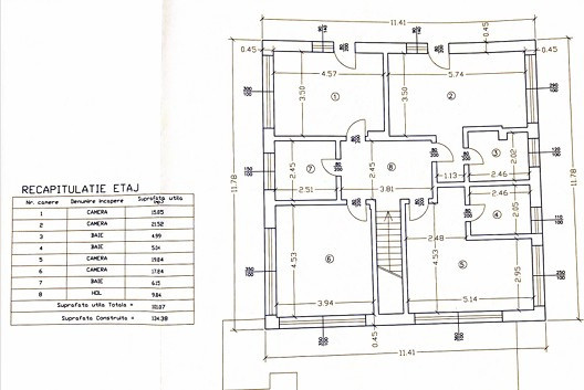
Compartimentare & spaţii :
Teren: 515 m² – suficient pentru curte, spaţii exterioare, eventual amenajări de relaxare.
Amprentă la sol: 191 m² – ceea ce înseamnă că construcţia ocupă o suprafaţă compactă pe parcelă, lăsând spaţiu liber pentru grădină, zonă de terasă.
Suprafaţă construită: 388 m² – incluzând grosimi de pereţi, circulaţii, garajul subteran şi alte spaţii auxiliare.
Suprafaţă utilă: 298 m² – spaţii interioare benefice pentru o distribuţie confortabilă:
7 camere: ideale pentru familie extinsă, oaspeți sau destinație de vacanță împreună cu prietenii.
Spaţii de depozitare: esenţiale pentru o locuinţă de munte — echipamente de iarnă, sporturi outdoor, bagaje, etc.
4 băi: distribuite strategic, astfel încât să fie ușor accesibile de la majoritatea camerelor, dar şi pentru zona de zi – fiecare baie beneficiaza de finisaje de calitate (gresie/parchet, cabină de duș sau cadă, lumină naturală).
Proprietatea este complet utilată şi mobilată — astfel e „la cheie”, gata pentru ocupare sau închiriere.
Terasa generoasa de 15 m²: un spaţiu exterior dedicat, cu vedere către munte — ideal pentru momente de relaxare, cafea dimineaţa, apusuri.
Garaj subteran: oferă parcare sigură, protejată, cu acces direct, ceea ce e un mare plus într‑o zonă de munte.
Zona de zi: un living spațios, conectat vizual (şi fizic) cu terasa, pentru a amplifica senzația de spațiu deschis şi legătura cu exteriorul.
Bucătărie complet utilată + posibil spațiu de luat masa – deschis sau separat, după preferințe.
Finisaje & detalii de confort:
Ferestre mari, cu geam termoizolant, pentru a capta lumina naturală și a păstra confortul termic.
Materiale alese pentru zonă montană: finisaje din lemn, piatră naturală, parchet de calitate, sisteme de încălzire adaptate – toate contribuind la o atmosferă caldă, primitoare.
Atmosferă & vibe :
La orice oră din zi, vei simți “aerul de munte”: dimineți liniştite cu sunetul naturii, seri calme cu stele deasupra terasei.
Vibe‑ul este relaxat, dar totodată elegant – o casă de munte care nu sacrifică confortul modern.
Terasa este punctul forte : locul ideal pentru socializare sau şosiri după o zi de schi sau drumeţie.
Intimitate şi conexiune cu natura: separarea clară a zonelor de noapte (camere) față de zona de zi, iar terasa ca legătură cu exteriorul.
Aspecte importante de evidențiat :
Vedere la munte – un determinant esențial pentru preț și valoare de recurență.
Terasă mare – în zona montană, terasa adaugă mult la experiență.
Număr mare de camere – flexibilitate pentru familie, prieteni, închiriere.
4 băi – confort sporit, fără compromis pentru o casă de vacanţă.
Loc de parcare, acces facil, infrastructură de curte/externă amenajată .
Finisaje de calitate – pun accent pe durabilitate în condiții montane (zăpadă, umiditate, diferenţe de temperatură).
Posibil scenariu de utilizare :
Imaginați‑vă cum ar arăta o zi în această vilă:
Dimineața: te trezești, deschizi terasa, ieşi cu cafeaua și admiri răsăritul peste munte.
Ziua: fie mergi la schi sau traseu, fie stai la masă în living şi apoi te retragi în camera ta cu vedere.
Seara: grătar pe terasă, conversaţii cu prietenii, apoi odihnă într‑una din cele spaţioase camere cu ambient cald.
Weekend‑uri frecvente, chiar relocare temporară în sezonul rece – vila se pretează atât ca casă de vacanță cât şi ca reședință sezonieră.
Citeste mai mult
Agentia imobiliara ERezidential va ofera spre vanzare o vila situată într‑una dintre cele mai pitorești zone montane din România, vila este concepută pentru a oferi o experiență de locuire unde natura, confortul și spațiul interior se împletesc armonios. Cu 7 camere generoase, un sistem bine gândit de living şi relaxare, o terasă panoramică ce îţi permite să savurezi priveliştea munţilor încă de la răsărit, şi 4 băi moderne, proprietatea se adresează celor care caută o casă de vacanță, retragerea de weekend sau chiar o investiţie.
Amplasare & context :
Amplasată în zona de munte din Azuga, cu acces facil către pârtiile de schi, trasee de drumeție şi natură – ideal atât pentru iarnă, cât şi pentru sezonul cald.
Terasa şi ferestrele mari sunt orientate astfel încât să profite de expunerea către munte, oferind vedere panoramică asupra crestelor, pădurilor şi văii.
Priveliștea montană adaugă un plus de valoare şi armonie: aer curat de munte, linişte, contact direct cu natură.
Compartimentare & spaţii :
Teren: 515 m² – suficient pentru curte, spaţii exterioare, eventual amenajări de relaxare.
Amprentă la sol: 191 m² – ceea ce înseamnă că construcţia ocupă o suprafaţă compactă pe parcelă, lăsând spaţiu liber pentru grădină, zonă de terasă.
Suprafaţă construită: 388 m² – incluzând grosimi de pereţi, circulaţii, garajul subteran şi alte spaţii auxiliare.
Suprafaţă utilă: 298 m² – spaţii interioare benefice pentru o distribuţie confortabilă:
7 camere: ideale pentru familie extinsă, oaspeți sau destinație de vacanță împreună cu prietenii.
Spaţii de depozitare: esenţiale pentru o locuinţă de munte — echipamente de iarnă, sporturi outdoor, bagaje, etc.
4 băi: distribuite strategic, astfel încât să fie ușor accesibile de la majoritatea camerelor, dar şi pentru zona de zi – fiecare baie beneficiaza de finisaje de calitate (gresie/parchet, cabină de duș sau cadă, lumină naturală).
Proprietatea este complet utilată şi mobilată — astfel e „la cheie”, gata pentru ocupare sau închiriere.
Terasa generoasa de 15 m²: un spaţiu exterior dedicat, cu vedere către munte — ideal pentru momente de relaxare, cafea dimineaţa, apusuri.
Garaj subteran: oferă parcare sigură, protejată, cu acces direct, ceea ce e un mare plus într‑o zonă de munte.
Zona de zi: un living spațios, conectat vizual (şi fizic) cu terasa, pentru a amplifica senzația de spațiu deschis şi legătura cu exteriorul.
Bucătărie complet utilată + posibil spațiu de luat masa – deschis sau separat, după preferințe.
Finisaje & detalii de confort:
Ferestre mari, cu geam termoizolant, pentru a capta lumina naturală și a păstra confortul termic.
Materiale alese pentru zonă montană: finisaje din lemn, piatră naturală, parchet de calitate, sisteme de încălzire adaptate – toate contribuind la o atmosferă caldă, primitoare.
Atmosferă & vibe :
La orice oră din zi, vei simți “aerul de munte”: dimineți liniştite cu sunetul naturii, seri calme cu stele deasupra terasei.
Vibe‑ul este relaxat, dar totodată elegant – o casă de munte care nu sacrifică confortul modern.
Terasa este punctul forte : locul ideal pentru socializare sau şosiri după o zi de schi sau drumeţie.
Intimitate şi conexiune cu natura: separarea clară a zonelor de noapte (camere) față de zona de zi, iar terasa ca legătură cu exteriorul.
Aspecte importante de evidențiat :
Vedere la munte – un determinant esențial pentru preț și valoare de recurență.
Terasă mare – în zona montană, terasa adaugă mult la experiență.
Număr mare de camere – flexibilitate pentru familie, prieteni, închiriere.
4 băi – confort sporit, fără compromis pentru o casă de vacanţă.
Loc de parcare, acces facil, infrastructură de curte/externă amenajată .
Finisaje de calitate – pun accent pe durabilitate în condiții montane (zăpadă, umiditate, diferenţe de temperatură).
Posibil scenariu de utilizare :
Imaginați‑vă cum ar arăta o zi în această vilă:
Dimineața: te trezești, deschizi terasa, ieşi cu cafeaua și admiri răsăritul peste munte.
Ziua: fie mergi la schi sau traseu, fie stai la masă în living şi apoi te retragi în camera ta cu vedere.
Seara: grătar pe terasă, conversaţii cu prietenii, apoi odihnă într‑una din cele spaţioase camere cu ambient cald.
Weekend‑uri frecvente, chiar relocare temporară în sezonul rece – vila se pretează atât ca casă de vacanță cât şi ca reședință sezonieră.
Specificatii
Curent
Apa
Canalizare
Gaz
Acces internet
Utilitati in zona
Centrala proprie
Calorifere
Aer conditionat
Izolatie Exterior
Izolatie Interior
Vopsea lavabila
Faianta
Parchet
Gresie
Ferestre Termopan
Usa intrare Metal
Usa interior Lemn
Pivnita
Spatiu depozitare
WC Serviciu
Anexe
Dependinte
Bucatarie Mobilata
Bucatarie Utilata
Apometre
Contor gaz
Complet mobilat
Curte
Esti interesat de aceasta proprietate ?